|
AlphaStairs Treppen
Mit
diesem Werkzeug lassen sich alle Treppen konstruktiv korrekt und mit allen
notwendigen Parametern erstellen. Auch unterschiedliche Fußbodenaufbauten
im unteren, oberen Geschoss und auf der Treppe werden berücksichtigt.
Es können die Treppen frei konstruiert werden, oder
die Lokalität aus dem CAD Programm importiert (dxf), die Treppe räumlich
an der gewünschten
Stelle konstruieren und das Ergebnis wieder ans CAD übergeben werden.
Mit AlphaStairs
lassen sich alle Treppen DIN gerecht, auch über mehrere Etagen, konstruieren.

 
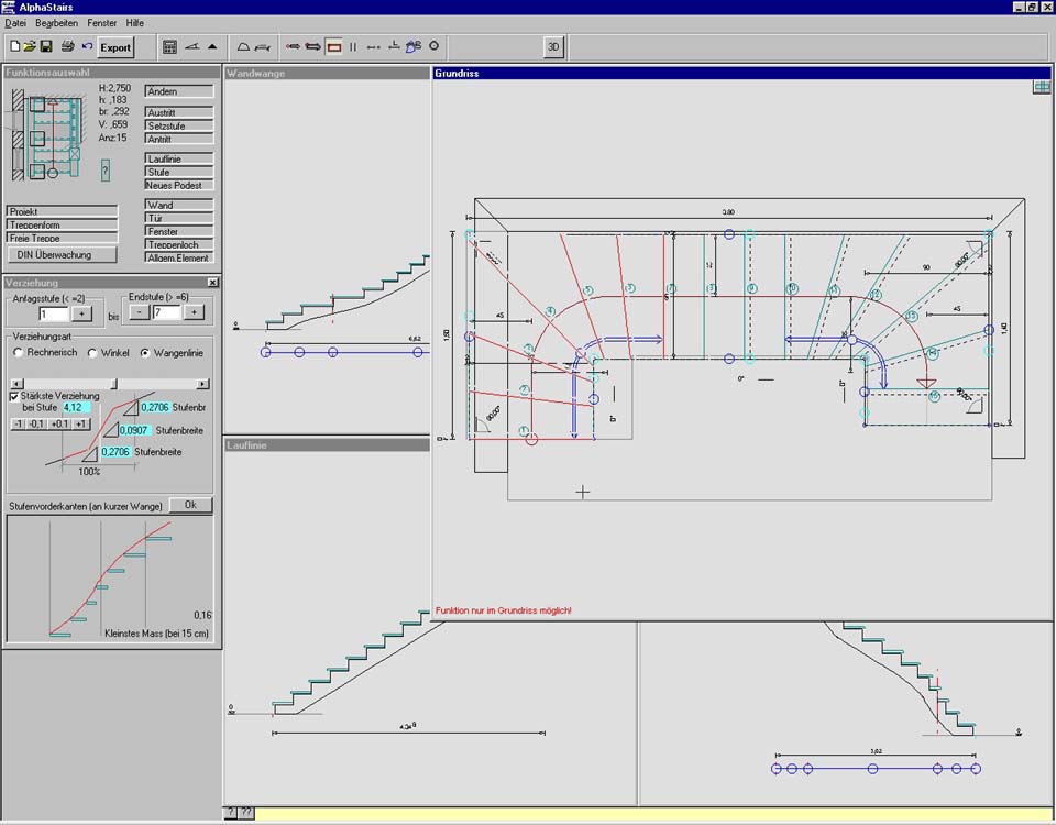
Darstellung
oben: Verziehung der Stufen; Darstellung links: Prüfung mit 3D Shader,
Darstellung rechts: gewünschte Auswahl als 2D Planergebnis zur Übergabe
an CAD
- Einfachstes Handling
- DIN Verfolgung
und Druchgangshöhe
- Beliebige Wendelungen
mit manipulierbarer Verziehung einer gewünschten Anzahl von Stufen
- Podeste frei einfügbar
- Materialliste mit
allen Einzelteilen der Treppe
- 2D und 3D mit Shader
- Holz, Stahl, Beton,
Betonfertigteil
- Schnelle Erzeugung
durch feste Typen. Treppen auch in freier Geometrie zu entwickeln
- Import von CAD
Geometrie zur Planung einer speziellen Treppe in diese Geometrie
- Export als 3D Modell
- Export als 2D Plan
mit diversen Optionen zur 2D Darstellung
- Das Werkzeug ist
in 3 Ausbaustufen erhältlich. Die Classic Version kann noch erweitert
werden. Weitere Funktionsbereiche sind:
- Mehrere Etagen
- Freie Treppe
entlang Spline
- Weitere Geländerfunktionen
- Weitere Funktionen
für Treppenwangen und Pfosten
- Kompletter
Renderer
- Druck und Plottfunktionen
Im Detail beinhalten
die 3 unterschiedlicher Ausbaustufen folgendes:
- Mit der Classic
Version als kleinster Version können alle Planer fast alle alle
geometrischen Aufgaben lösen und die gewünschten 2d oder 3d
Daten an ihr CAD-Planungswerkzeug übergeben. Die Druckausgabe wird
im CAD erledigt.
- Die Premium Version
ist auch für Planer mit eigenem CAD-Planungswerkzeug gedacht, jedoch
mit weiteren Möglichkeiten. Sie verfügt über die Druckfunktion
und über noch mehr Detailfunktionen als die Classic Version. So
können Sie beispielsweise mehrere Etagen gleichzeitig planen (In
der Classic Version nur 1 Geschoss). Weitere ergänzende Highlights
sind Treppen entlang einer Spline, verschiedenen Geländertypen
(Standardgeländer bei der Classic Version), Setzstufen, 3D Schnitte,
2D Schnitte (in der Classic Version sind nur 2D Ansichten möglich).
- Die Vollversion
ist für Treppenbauer zum Beispiel ohne eigenes CAD-Planungswerkzeug
gedacht und beinhaltet auch einen kompletten Renderer (GammaRay), alle
herstellungsspezifischen Funktionen wie eingestemmte Stufen, Verbindungsmittel
und die Möglichkeit 1-1 zu drucken.
Wichtige weitere
Informationen:
|